DNT Torfinnsbu

2023-2026

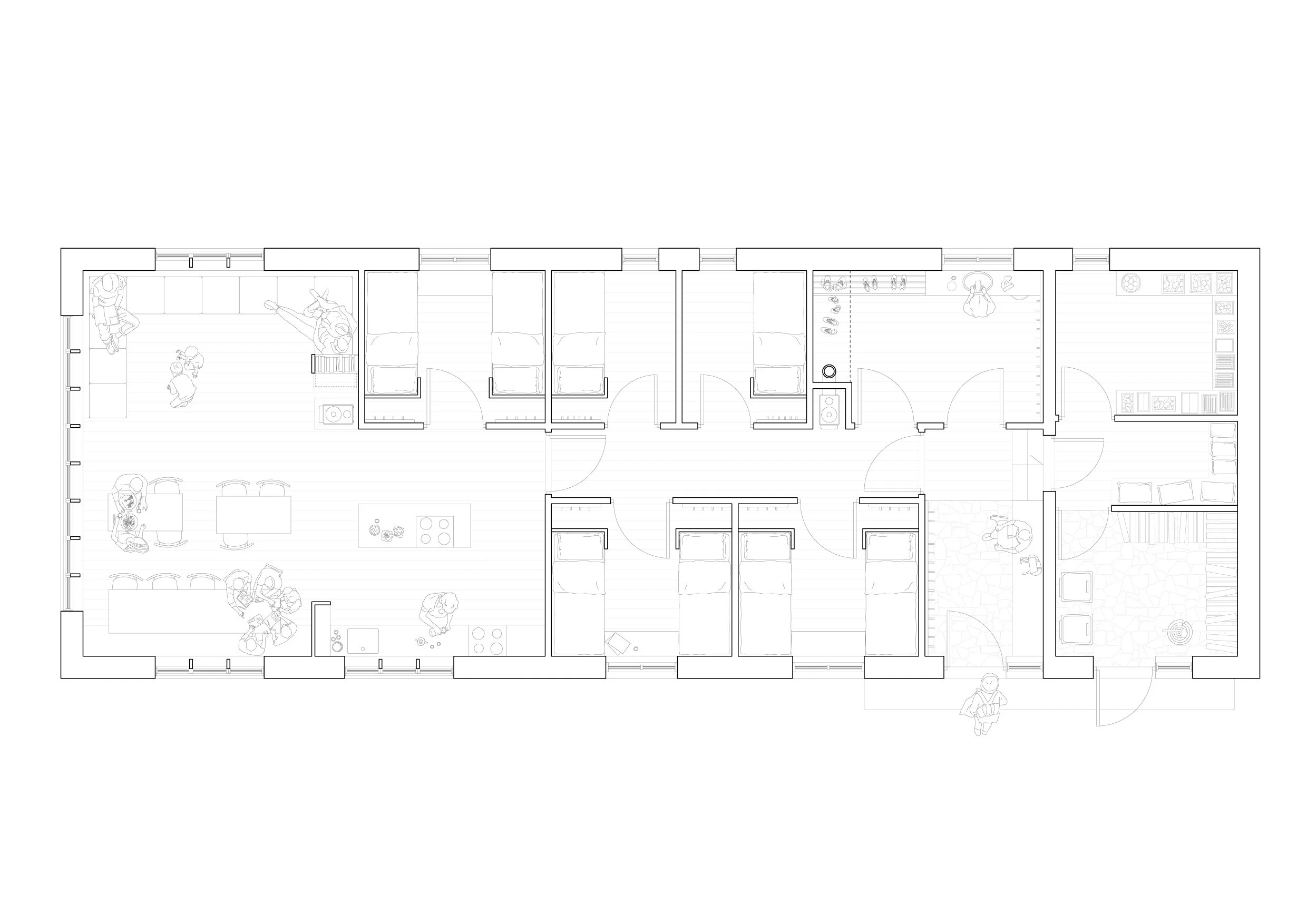
Skisse av hyttene ved DNT Torfinnsbu

Hvordan ser en ny DNT-hytte ut?

Målet med det nye langhuset har hele veien vært å skape et bygg som snakker med historien og tåler fremtidens vær. Bygget er plassert nøyaktig der det gamle langhuset, «Lafta» og hundebua lå. Det fungerer som en skjerm mot fallvinden og skaper et lunt, sørvendt tun. Inspirasjonen er hentet fra gamle sæterfjøs, særlig DNT-hytta Navarsete, der man i én og samme bygningskropp kobler sammen lune oppholdsarealer med utsikt, og praktiske driftsrom.

Dette grepet løser samtidig et av hovedproblemene på det eksisterende tunet: snødrev og skavling. Vi har jobbet nøye med plassering i forhold til vindretning, samtidig med at proviant- og vedlager nå kan betjenes innenfra. Vi har også plassert et soverom i oppholdsrommet som kan deles av fra resten av hytta med en skyvedør. Slik oppnår man en trygg og behagelig opplevelse midtvinters, der man slipper å fyre opp hele hytta om man er alene.

Innvendig er romforløpet en rendyrking av selve ankomsten til en DNT-hytte: Du har gått langt og er sliten, slår opp døra til en ryddig og lys entré, går rett i tørkerommet og kan fyre opp.

Materialbruken er tuftet på en fornuftig tilnærming til bærekraft, noe alle involverte har brent for. Bygget puster med trefiberisolasjon og har naturbeis på veggene. Kledningen er grov, og fasaden er bevisst oppdelt for at man skal kunne «bruke opp» panelet med minimalt avkapp for å redusere bygningsavfallet.

Innvendig er romforløpet en rendyrking av selve ankomsten til en DNT-hytte: Du har gått langt og er sliten, slår opp døra til en ryddig og lys entré, går rett i tørkerommet og kan fyre opp. Nedover korridoren får du en siktlinje mot vierkrattene langs Bygdins bredde. Et rundt vindu, inspirert av de lokale valdresrosene, peker direkte mot Galdeberget og den historiske vandreruten jeg selv kom fra Fondsbu på, første gang jeg var her oppe. Sitter du i sofakroken i stua, kan du fortsatt se toppen av Torfinnstindene fordi det er tatt et «jafs» av takutstikket.

Neste
Neste

Hytte Engerdal